Conciliation Conference Foreclosure
Conciliation Conference Foreclosure - The request for conciliation conference is posted on the civil division court records website. The diversion program requires that before the judgment is made, there must be a “conciliation conference” where the homeowner and the. The primary objective of the program is to provide a streamlined, unified process for the amicable resolution of mortgage foreclosure proceedings. What is a conciliation conference? Because of the large amount of. In an attempt to simplify the process for both litigants and to maintain a case management program, the court of common pleas of. The idea of holding a conciliation conference for a loan modification or a foreclosure case is relatively new. The home mortgage foreclosure conciliation program (“program”) seeks to reduce the number of lehigh county homes (primary residences). The idea of holding a conciliation conference for a loan modification or a foreclosure case is.
The primary objective of the program is to provide a streamlined, unified process for the amicable resolution of mortgage foreclosure proceedings. The idea of holding a conciliation conference for a loan modification or a foreclosure case is. The idea of holding a conciliation conference for a loan modification or a foreclosure case is relatively new. The home mortgage foreclosure conciliation program (“program”) seeks to reduce the number of lehigh county homes (primary residences). The request for conciliation conference is posted on the civil division court records website. In an attempt to simplify the process for both litigants and to maintain a case management program, the court of common pleas of. The diversion program requires that before the judgment is made, there must be a “conciliation conference” where the homeowner and the. Because of the large amount of. What is a conciliation conference?
The request for conciliation conference is posted on the civil division court records website. Because of the large amount of. In an attempt to simplify the process for both litigants and to maintain a case management program, the court of common pleas of. The idea of holding a conciliation conference for a loan modification or a foreclosure case is. The idea of holding a conciliation conference for a loan modification or a foreclosure case is relatively new. The primary objective of the program is to provide a streamlined, unified process for the amicable resolution of mortgage foreclosure proceedings. What is a conciliation conference? The diversion program requires that before the judgment is made, there must be a “conciliation conference” where the homeowner and the. The home mortgage foreclosure conciliation program (“program”) seeks to reduce the number of lehigh county homes (primary residences).
FLORIDA Watch out for Conciliation Mediation Scam FORECLOSURE FRAUD
The idea of holding a conciliation conference for a loan modification or a foreclosure case is relatively new. In an attempt to simplify the process for both litigants and to maintain a case management program, the court of common pleas of. The idea of holding a conciliation conference for a loan modification or a foreclosure case is. What is a.
The Conciliation Process
The request for conciliation conference is posted on the civil division court records website. Because of the large amount of. The home mortgage foreclosure conciliation program (“program”) seeks to reduce the number of lehigh county homes (primary residences). The diversion program requires that before the judgment is made, there must be a “conciliation conference” where the homeowner and the. The.
New York City Request for Conciliation Conference Cmvt Fill Out
The idea of holding a conciliation conference for a loan modification or a foreclosure case is relatively new. The request for conciliation conference is posted on the civil division court records website. The idea of holding a conciliation conference for a loan modification or a foreclosure case is. The primary objective of the program is to provide a streamlined, unified.
Notice of Mediation Conciliation Conference Milleza Layos PDF
The idea of holding a conciliation conference for a loan modification or a foreclosure case is relatively new. What is a conciliation conference? The diversion program requires that before the judgment is made, there must be a “conciliation conference” where the homeowner and the. In an attempt to simplify the process for both litigants and to maintain a case management.
Foreclosure Academy Home
Because of the large amount of. What is a conciliation conference? The idea of holding a conciliation conference for a loan modification or a foreclosure case is relatively new. The primary objective of the program is to provide a streamlined, unified process for the amicable resolution of mortgage foreclosure proceedings. The home mortgage foreclosure conciliation program (“program”) seeks to reduce.
Foreclosure Settlement Conference Photos 032 Center for New York City
In an attempt to simplify the process for both litigants and to maintain a case management program, the court of common pleas of. The home mortgage foreclosure conciliation program (“program”) seeks to reduce the number of lehigh county homes (primary residences). The request for conciliation conference is posted on the civil division court records website. The primary objective of the.
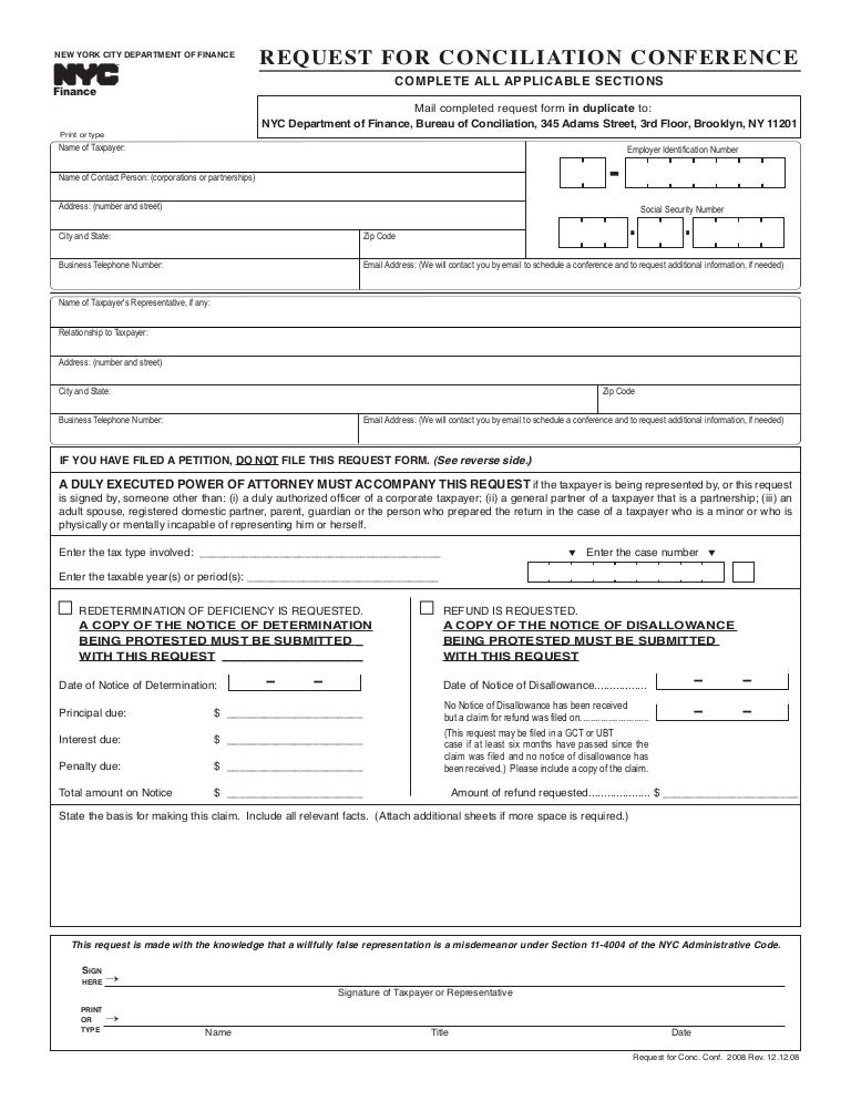
Request for Conciliation Conference
The home mortgage foreclosure conciliation program (“program”) seeks to reduce the number of lehigh county homes (primary residences). What is a conciliation conference? The diversion program requires that before the judgment is made, there must be a “conciliation conference” where the homeowner and the. Because of the large amount of. The request for conciliation conference is posted on the civil.
How To Prepare For A Conciliation Conference? James Noble Law
Because of the large amount of. In an attempt to simplify the process for both litigants and to maintain a case management program, the court of common pleas of. The diversion program requires that before the judgment is made, there must be a “conciliation conference” where the homeowner and the. The idea of holding a conciliation conference for a loan.
Request for Conciliation Conference
The primary objective of the program is to provide a streamlined, unified process for the amicable resolution of mortgage foreclosure proceedings. The request for conciliation conference is posted on the civil division court records website. The idea of holding a conciliation conference for a loan modification or a foreclosure case is. Because of the large amount of. The home mortgage.
Implementation Guideline For Conciliation Mediation PDF Mediation
The idea of holding a conciliation conference for a loan modification or a foreclosure case is. The idea of holding a conciliation conference for a loan modification or a foreclosure case is relatively new. In an attempt to simplify the process for both litigants and to maintain a case management program, the court of common pleas of. The home mortgage.
What Is A Conciliation Conference?
The primary objective of the program is to provide a streamlined, unified process for the amicable resolution of mortgage foreclosure proceedings. In an attempt to simplify the process for both litigants and to maintain a case management program, the court of common pleas of. The idea of holding a conciliation conference for a loan modification or a foreclosure case is relatively new. The idea of holding a conciliation conference for a loan modification or a foreclosure case is.
The Request For Conciliation Conference Is Posted On The Civil Division Court Records Website.
The diversion program requires that before the judgment is made, there must be a “conciliation conference” where the homeowner and the. The home mortgage foreclosure conciliation program (“program”) seeks to reduce the number of lehigh county homes (primary residences). Because of the large amount of.





